Nabízíme k pronájmu byt 3+1 s lodžií na atraktivním místě v Třeboni.
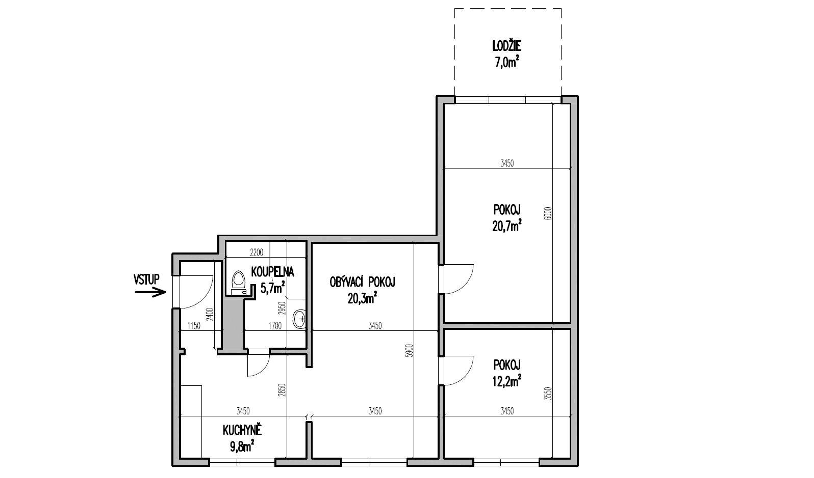
Byt o celkové výměře 72 m2 se nachází v přízemí bytového domu a skládá se z chodby, ze které je vstup do kuchyně s jídelnou. Z kuchyně je dále vstup do koupelny a obývacího pokoje. Obývací pokoj je průchozí do pokoje a ložnice, ze které je vstup na lodžii. K bytu je možné užívat i sklepní kóji a společnou kolárnu.
Dispoziční řešení a velikosti jednotlivých místností naleznete na přiloženém půdorysu.
Bezplatné parkování je možné přímo před domem na veřejném parkovišti.
Energetická třída C úsporná.
Byt je ihned k dispozici a je určen k dlouhodobému nájmu.
Nájemné je 14.000,-Kč/měs., zálohy za služby 5.000,-Kč/měs. (elektřina, voda, vytápění, atd.)
Kauce 2x měsíční nájem + provize RK

