Nabízíme exkluzivně k prodeji mimořádný měšťanský dům situovaný jen pár kroků od hlavního náměstí malebného lázeňského města Třeboň.
Tato nemovitost se nachází v samotném historickém jádru na rohu ulic Husova a Březanova, v těsném sousedství kostela sv. Jiljí a augustiniánského kláštera, což jí dodává jedinečný genius loci a prestižní adresu.
Dům určený k rekonstrukci je vyklizený a připravený k užívání.
Zastavěná plocha domu je 294 m2.
Přízemí domu má výměru 225 m2 a je v současné době pronajato na obchodní prostory.
První patro má celkovou výměru 215 m2 a dále je zde velkorysý půdní prostor s možností vestavby o rozloze 225 m2.
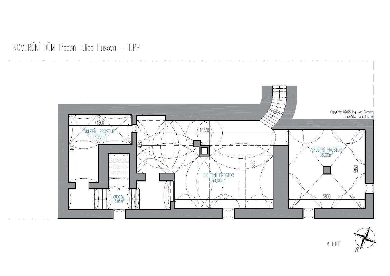
Unikátní sklepní prostory pod domem s krásnými klenbami jsou o výměře 130 m2.
Nemovitost nabízí skvělý potenciál pro investory i pro ty, kteří hledají výjimečné místo k životu či podnikání. Historické domy v této lokalitě jsou velmi vzácné a jen zřídka se dostávají na trh. Nezmeškejte tuto jedinečnou příležitost!
Jedná se o vynikající investiční příležitost v historické části Třeboně.
Energetická třída G je uvedena dočasně, vzhledem k novele zákona č. 406/2000 Sb. O hospodaření s energií. Po dodání energetického štítku bude uvedena skutečná energetická třída této nemovitosti.
V případě zájmu o prohlídku mne prosím kontaktuje na uvedeném telefonním čísle nebo e-mailu.
Financování nemovitosti Vám rádi zajistíme.
Třeboňská realitní s.r.o.
PRODÁVÁME REALITY. REÁLNĚ.

